
La casa de lujo de Strauss Kahn
Strauss Kahn ha regresado a Francia. En el exclusivo barrio neoyorquino de Tribeca deja el loft de lujo en el que se alojó cuando aún era director gerente del FMI. Ahora, su casa se vende por 14 millones de dólares (unos 10 millones de euros). El alquiler asciende a 50.000 dólares mensuales (unos 35.000 euros) cada mes.
- Compartir
- Tuitear
- Enviar
- Enviar

Salón con claraboya
En esta imagen podemos observar uno de los salones de la casa, iluminado por luz natural gracias a una moderna claraboya
- Compartir
- Tuitear
- Enviar
- Enviar

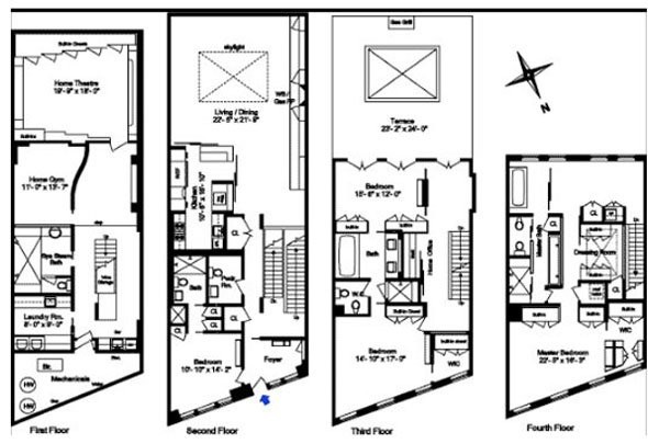
Los planos
En esta imagen encontramos los planos de las tres plantas con las que cuenta el Loft de lujo de Strauss Kahn en Manhattan. El ex director gerente del FMI pagaba unos 35.000 euros mensuales por la casa. Ahora, se vende por 10 millones de euros. Se encuentra ubicada en uno de los barrios más exclusivos de manhattan, en la zona norte de la ciudad de Nueva York
- Compartir
- Tuitear
- Enviar
- Enviar

Terraza
Situado en el 153 de la calle Franklin, el loft en el que ha estado alojado Strauss Kahn contaba con una amplia terraza con vistas a los rascacielos de la ciudad de Nueva York. En la imagen podemos ver la claraboya que dota de luz natural a una de las estancias de la casa
- Compartir
- Tuitear
- Enviar
- Enviar

Portal
Portal del apartamento de lujo en la calle Franklin de Nueva York
- Compartir
- Tuitear
- Enviar
- Enviar

Sala de televisión
El apartamento de lujo contaba con una sala de televisión para ver películas, e incluso las noticias
- Compartir
- Tuitear
- Enviar
- Enviar

Salón
Otra vista del salón con claraboya del apartamento recién reformado
- Compartir
- Tuitear
- Enviar
- Enviar

Recibidor
Otra de las estancias de la vivienda, el recibidor
- Compartir
- Tuitear
- Enviar
- Enviar

Gimnasio
Aunque no se ha aclarado el uso que el exdirector gerente del FMI dio al gimnasio, su loft contaba con uno que tenía televisión, pesas y máquinas muy modernas
- Compartir
- Tuitear
- Enviar
- Enviar

Grandes ventanas
Toda la vivienda cuenta con grandes ventanales que dontan al loft de luz natural
- Compartir
- Tuitear
- Enviar
- Enviar

Comedor
La estancia principal de la casa también cuenta con un comedor. la mitad de los comensales toma asiento en un zócalo que sale de la pared. Está situado en el mismo salón de claraboya
- Compartir
- Tuitear
- Enviar
- Enviar