

Los supuestos pisos de Díaz Ferrán en Nueva York
El expresidente de la ceoe y exdueño de marsans, Gerardo Díaz Ferrán, ocultó a través de la sociedad holdisan inversiones la propiedad de dos pisos de lujo en nueva york. Ahora las agencias inmobiliarias que los comercializaban aseguran en sus web que los inmuebles, han sido vendidos.
- Compartir
- Tuitear
- Enviar
- Enviar

1 / 9
Se trata de dos viviendas de 167 y 80 m2 cuadrados ubicadas en las dos mejores zonas de Nueva York.
- Compartir
- Tuitear
- Enviar
- Enviar

2 / 9
Se encuentran en los números 350 y 1610 del edificio que ocupaba el hotel plaza de Nueva York.
- Compartir
- Tuitear
- Enviar
- Enviar

3 / 9
El primero está situado en la tercera planta y cuenta con dos dormitorios, dos baños, un aseo y salón.
- Compartir
- Tuitear
- Enviar
- Enviar

4 / 9
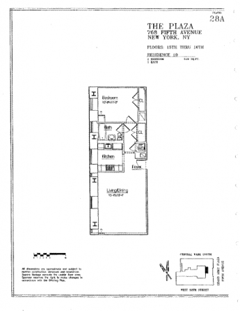
El segundo, de menor tamaño, se localiza en la decimosexta planta. dispone de un único dormitorio.
- Compartir
- Tuitear
- Enviar
- Enviar

5 / 9
La justicia investiga si el ex presidente de la ceoe y exdueño de marsans, Gerardo Díaz Ferrán, ocultó a través de la sociedad holdisan inversiones la propiedad de dos pisos de lujo en Nueva York.
- Compartir
- Tuitear
- Enviar
- Enviar
Temas
Recomendamos
